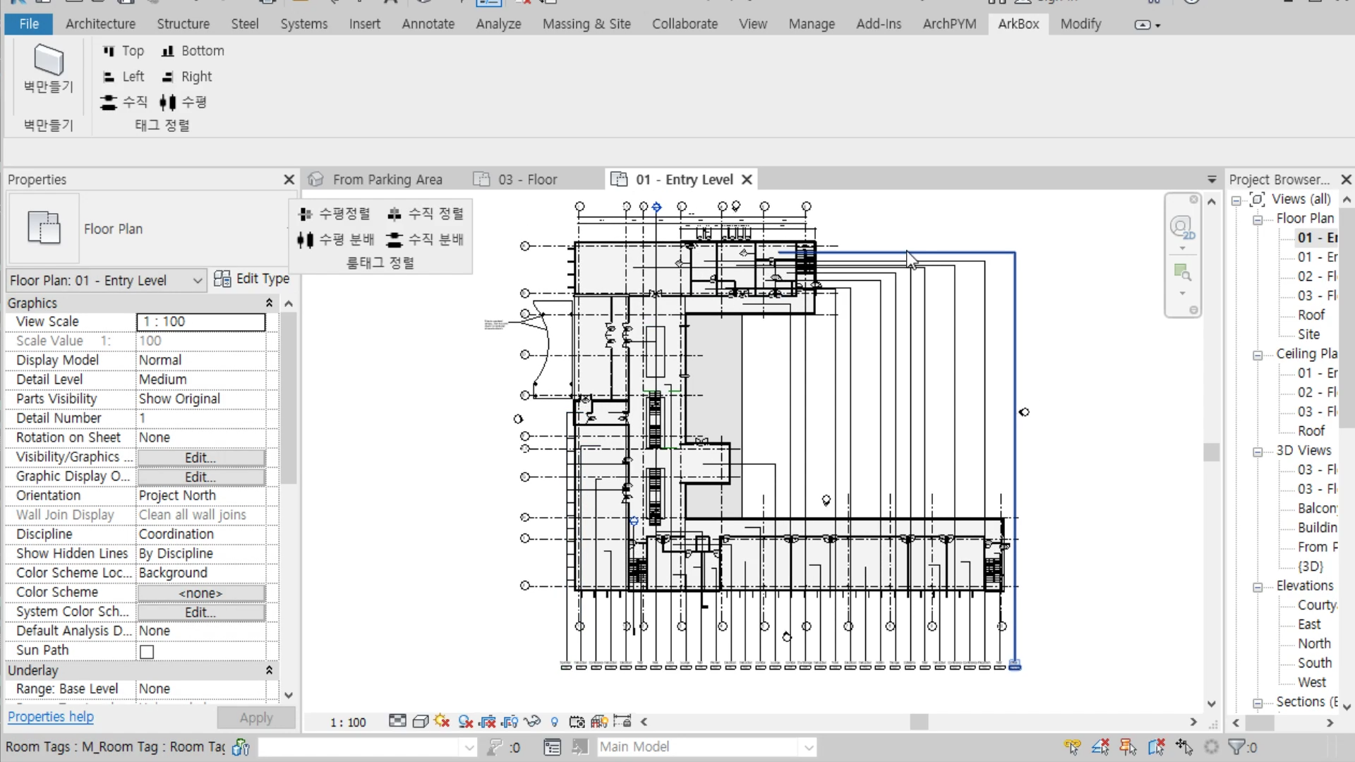
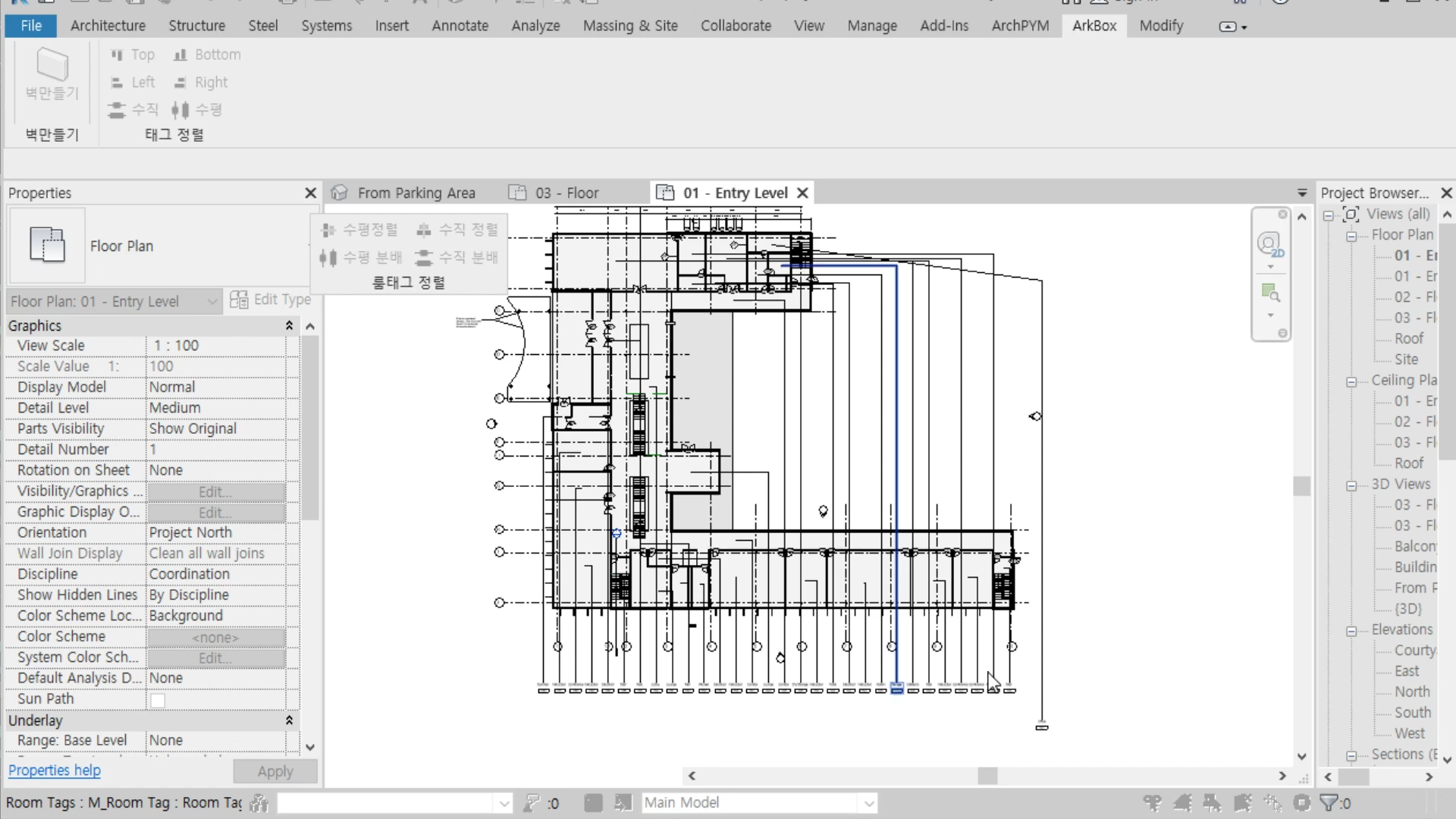
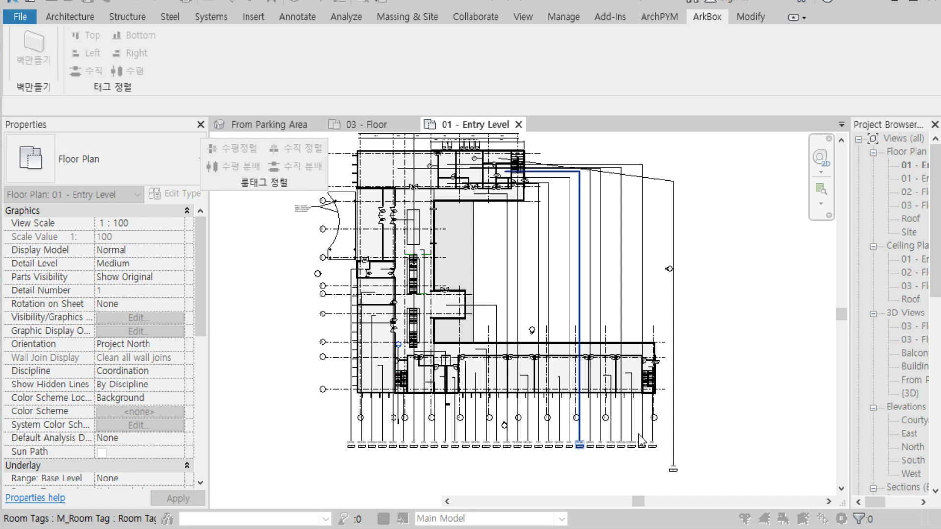
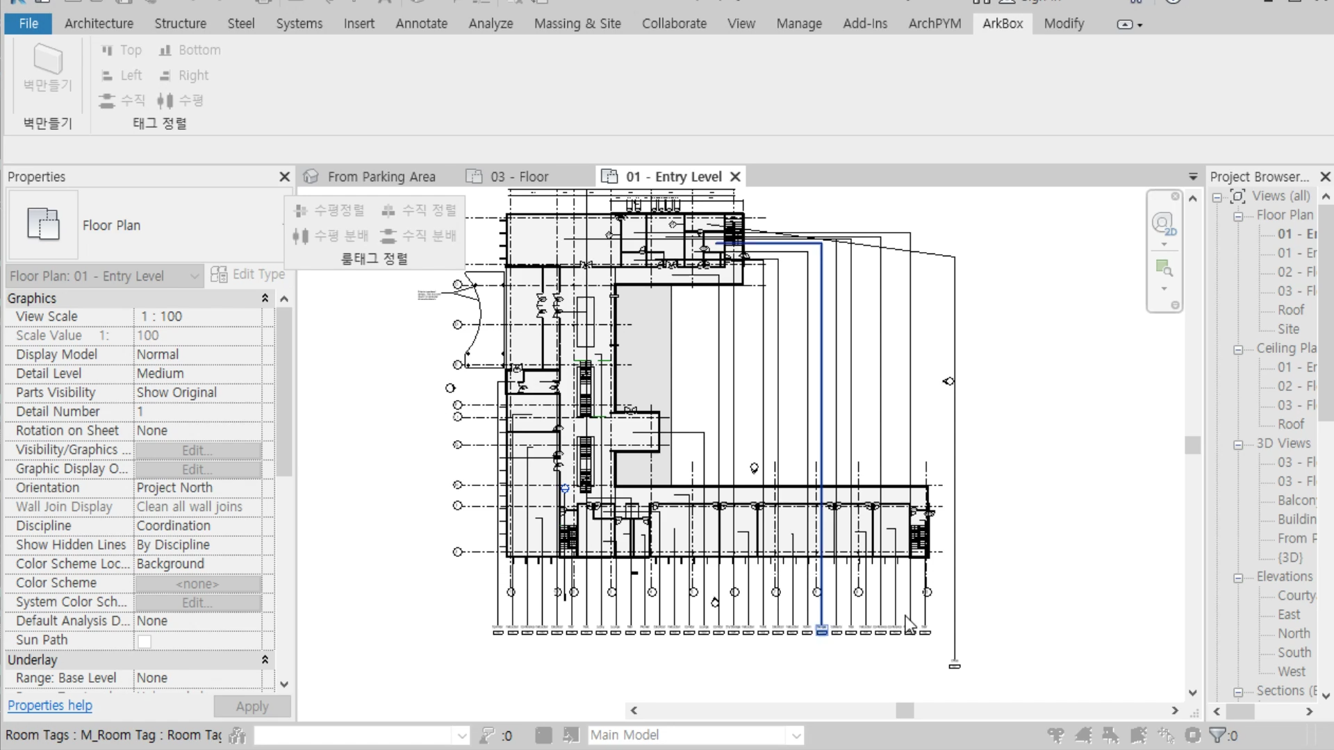
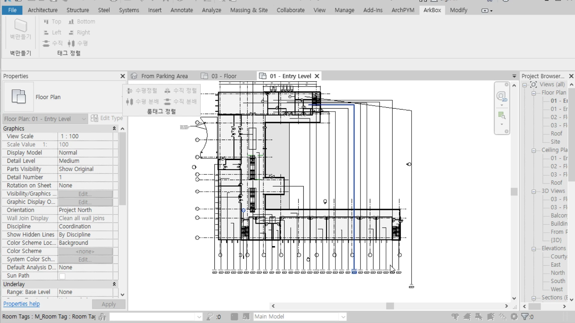
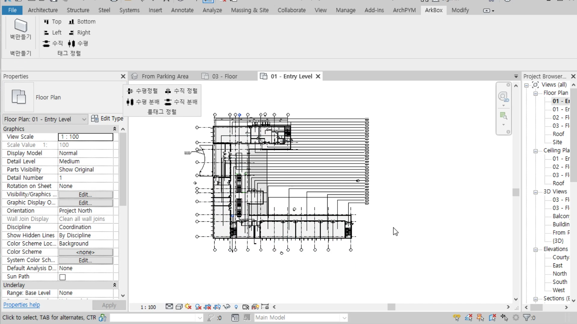
래빗에서 도면 작업을 할 때 태그를 정렬하는 작업량이 많이 있습니다.
래빗에 있는 정렬기능을 사용해서 보기 좋게 정렬하기에도 어려움이 있습니다.
한번에 선택을 해서 정렬이 되도록 만들어 봤습니다.
태그를 분배를 하면 지시선들이 꼬이는데 이것도 해결된 애드인입니다.



'REVIT > Add-in' 카테고리의 다른 글
| [REVIT ADDIN]룸테그 정렬 애드인 (room tag arrange) (0) | 2021.03.09 |
|---|---|
| 형상 검토를 위한 MRI 기능 Add-in 개발 (0) | 2020.12.04 |
| 벽의 프로파일을 보와 바닥을 이용하여 변경하는 애드인 (0) | 2019.07.09 |
| Find Dimension in revit using addin (0) | 2019.06.05 |
| 지적도 그리기(정보 입히기) (0) | 2018.07.12 |