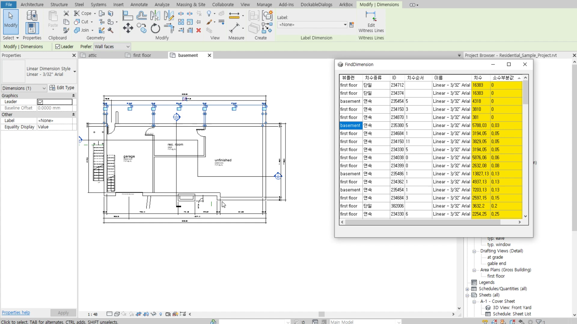
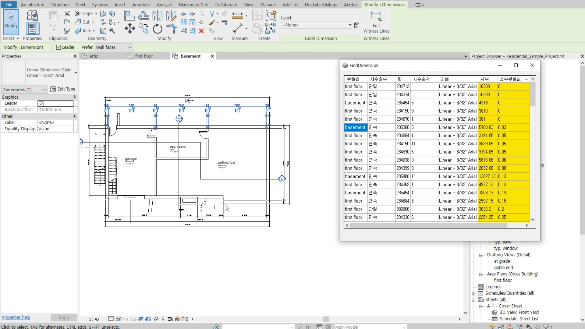
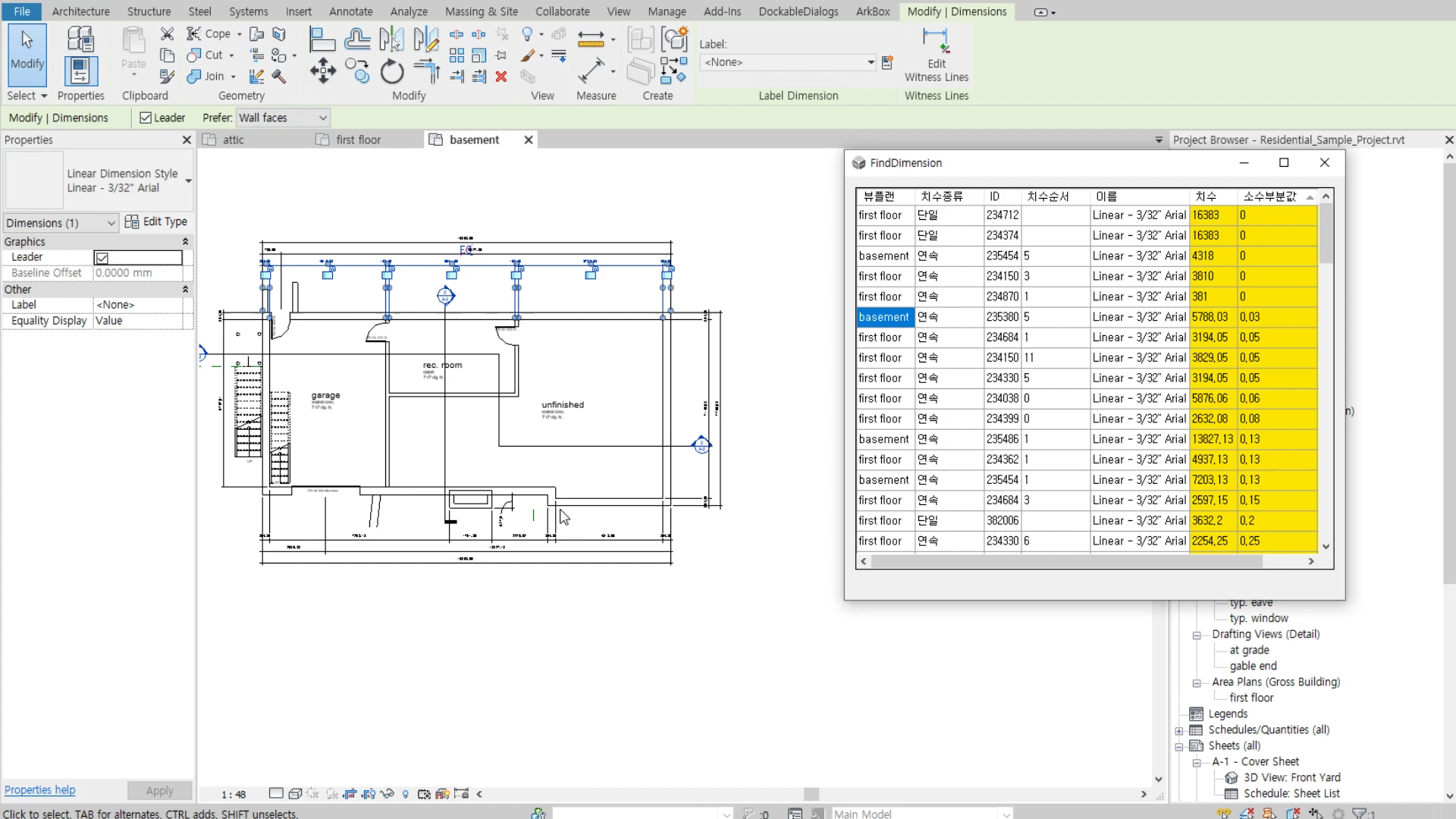
설계치수의 소숫점 아래 숫자를 깔끔하게 처리하기 위해 치수가 소수점 아래 0이 아닌 치수를 찾습니다.
이를 위해 치수리스트를 만들고 원하는 치수를 찾아 변경하도록 하는 기능의 애드인입니다.


'REVIT > Add-in' 카테고리의 다른 글
| Revit Roomtag arrange & align automation (0) | 2019.07.26 |
|---|---|
| 벽의 프로파일을 보와 바닥을 이용하여 변경하는 애드인 (0) | 2019.07.09 |
| 지적도 그리기(정보 입히기) (0) | 2018.07.12 |
| 레빗 도면에 A1 A3 스케일 넣기 (3) | 2018.06.18 |
| DWG도면 레이어 추출하여 REVIT 벽 만들기 (3) | 2018.06.18 |