
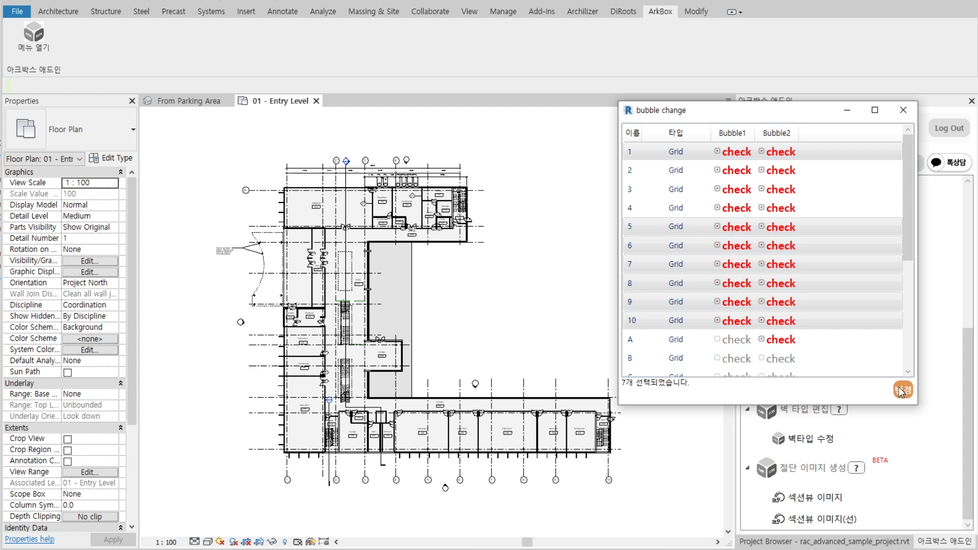
소개해 드릴 addin은 grid나 level에 있는 버블을 관리 해 주는 애드인입니다.
버블을 체크박스를 선택해서 하나씩 관리하는 방법은 조금 번거로울 수 있습니다.
한번에 여러 버블을 관리할 수 있도록 개발해 봤습니다.
영상으로 더 자세한 기능을 확인해 주세요

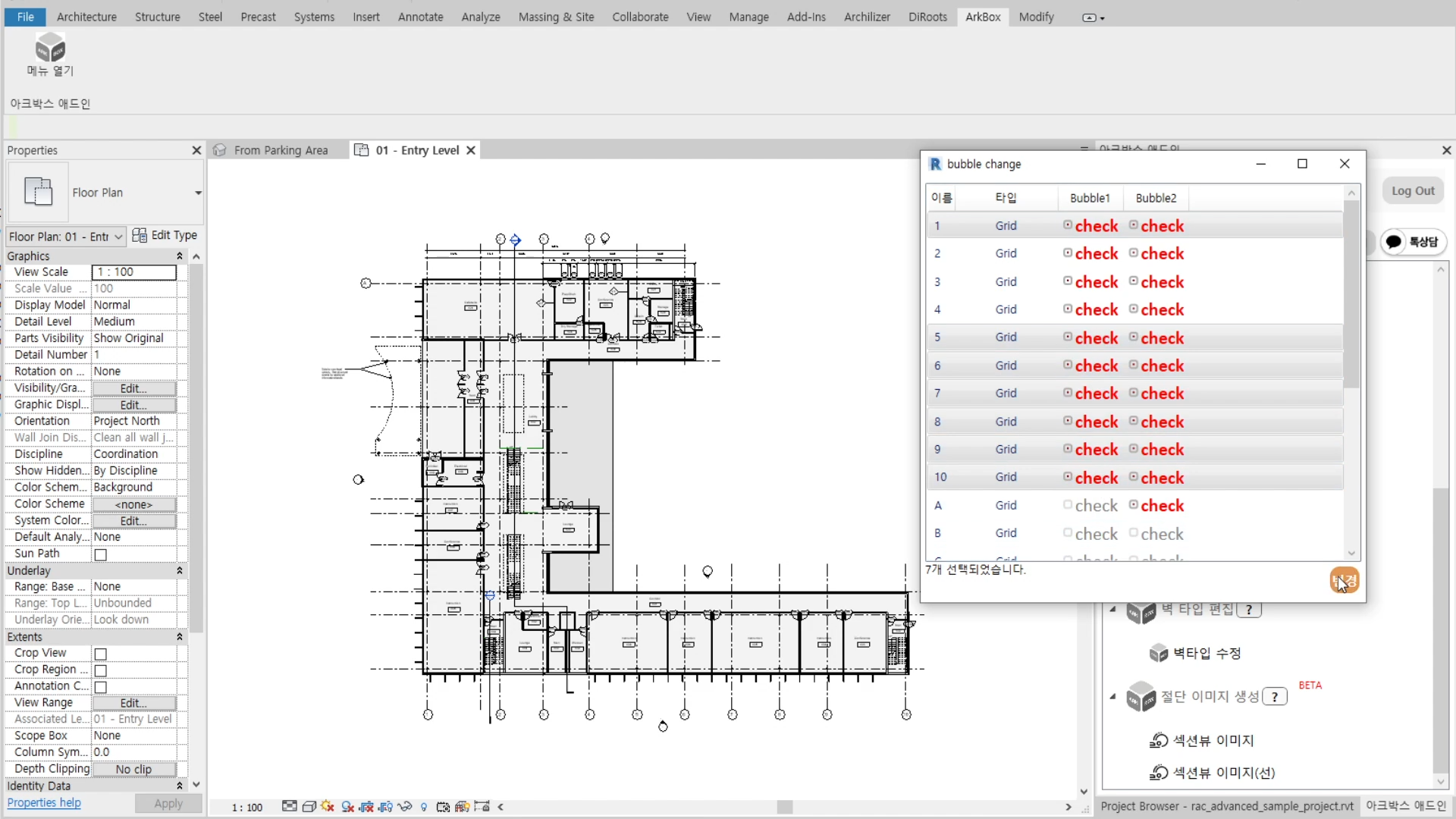
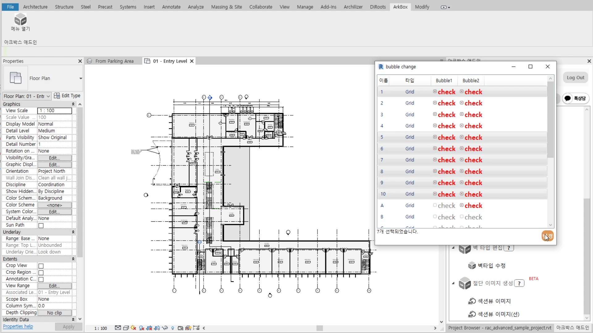
소개해 드릴 addin은 grid나 level에 있는 버블을 관리 해 주는 애드인입니다.
버블을 체크박스를 선택해서 하나씩 관리하는 방법은 조금 번거로울 수 있습니다.
한번에 여러 버블을 관리할 수 있도록 개발해 봤습니다.
영상으로 더 자세한 기능을 확인해 주세요