안녕하세요 아크 박스입니다.
아크박스건축사사무소가 하남시로 이전했습니다.
사무실 위치는 경기도 하남시에 위치한 하우스 디 스마트밸리(지식산업센터) 343호입니다.
지식산업센터는 성격에 따라 오피스형과 공장형이 있습니다.
공장형은 자동차가 작업공간까지 들어가고, 오피스형은 오피스빌딩과 비슷합니다.
아크박스가 입주한 곳은 오피스형입니다. 오피스형도 층고가 5M나 됩니다.

계획 1안
지식산업센터에 입주한 많은 업체가 중층으로 리모델링하고 입주를 합니다.
그래서 아크 박스도 처음에 중층으로 인테리어를 계획했습니다.
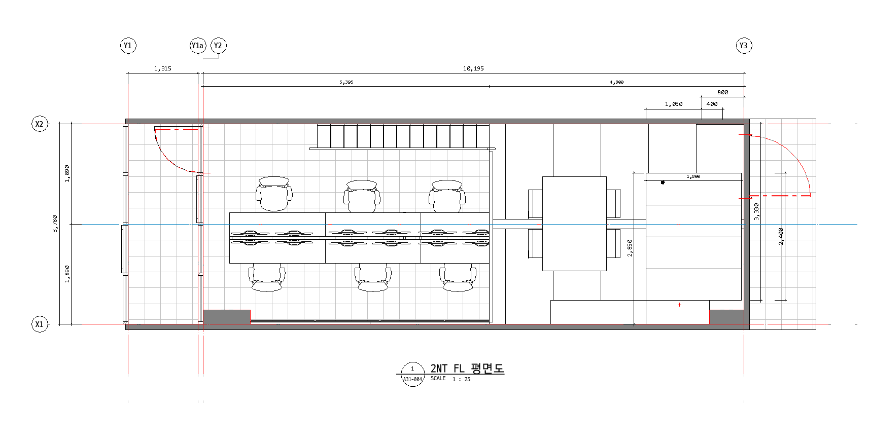
계획 시 주안점은 최대 6명이 앉을 수 있는 데스크, 회의 테이블, 스토리지(DIY 모빌렉), 아이디어 보드입니다.



사실 중층 리모델링은 불법입니다.
지식산업센터가 많은 하남시는 이것 때문에 이슈가 있는 거 같습니다.
계획 2안
계획 시 주안점은 최대 6명이 앉을 수 있는 데스크, 회의 테이블, 스토리지(샘플 서랍장), 아이디어 보드입니다.







